Technische Angaben
- ImmoNr
- 036.06-VM-24-08
Kategorie
- Objektart
- Büro/Praxen
- Objekttyp
- Bürofläche
- Nutzungsart
- Gewerbe
- Vermarktungsart
- Miete
Geografische Angaben
- Ort
- Löbau
- Land
- Deutschland
- Etage
- 2. OG
Flächen
- Gewerbefläche
- ca. 121 m²
- Gesamtfläche
- ca. 121 m²
- Anzahl Zimmer
- 4
Ausstattung
- Fahrstuhl
- Kein Fahrstuhl
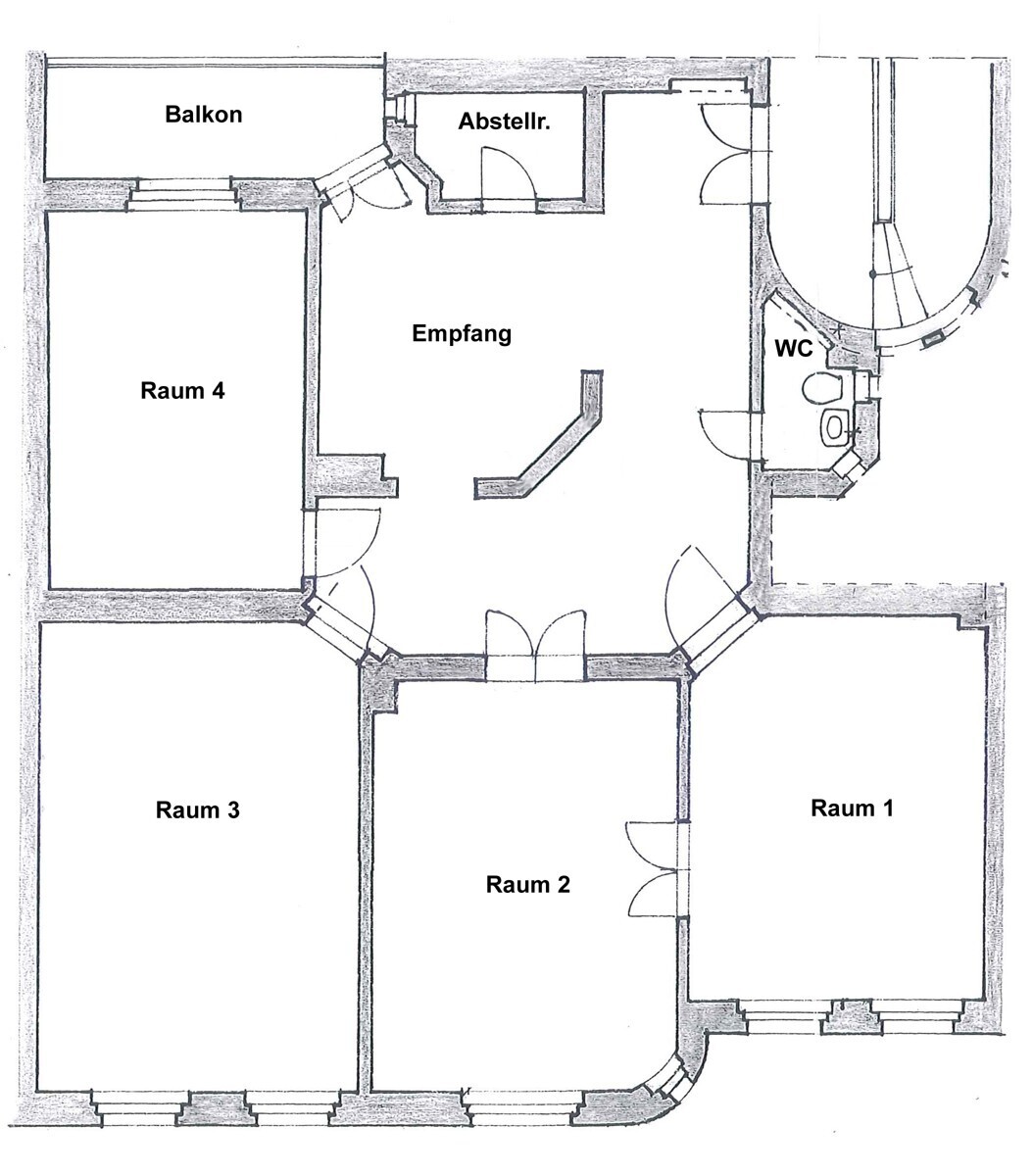
Beschreibung
Diese attraktive Gewerbefläche befindet sich im 2. Obergeschoss eines denkmalgeschützten Wohn- und Geschäftshauses mitten in der schönen Löbauer Bahnhofstr. und kann nach Renovierung gemietet werden. Die unsanierten großen und hellen Räume können nach eigenen Ideen und Vorstellungen je nach Bedarf in Absprache mit dem Vermieter renoviert und ausgestattet werden. Danach richtet sich auch der Mietpreis. Sie sind als Büro- oder Praxisräume geeignet und können vielfältig genutzt werden.
Ausstattung
– Gaszentralheizung
– unrenoviert
– Balkon
– 1 WC
– 4 Räume
– unrenoviert
– Balkon
– 1 WC
– 4 Räume
Energieausweis
- Energieausweis
- es besteht keine Pflicht!
- wesentlicher Energieträger
- Gas











